
Site analysis
|
The proprietor of the project is Anida Drive Technology (Shanghai) Co., Ltd., mainly engaged in the research, development, production and sales of electric bicycles, electric motorcycles, robots and their control systems.
Since the client is a bicycle-driven enterprise, he hopes to integrate some elements of the enterprise into the landscape when making this landscape. The designer creates a mini-park themed by bicycles in this space.
Before the transformation
|
The original site has already had the landscape, but it is a relatively conventional landscape practice, can not highlight the corporate culture.
A large area is blank, for the designer, there is a good play space, behind the wall part of a large green plant, but people can not enter, it is a pity.

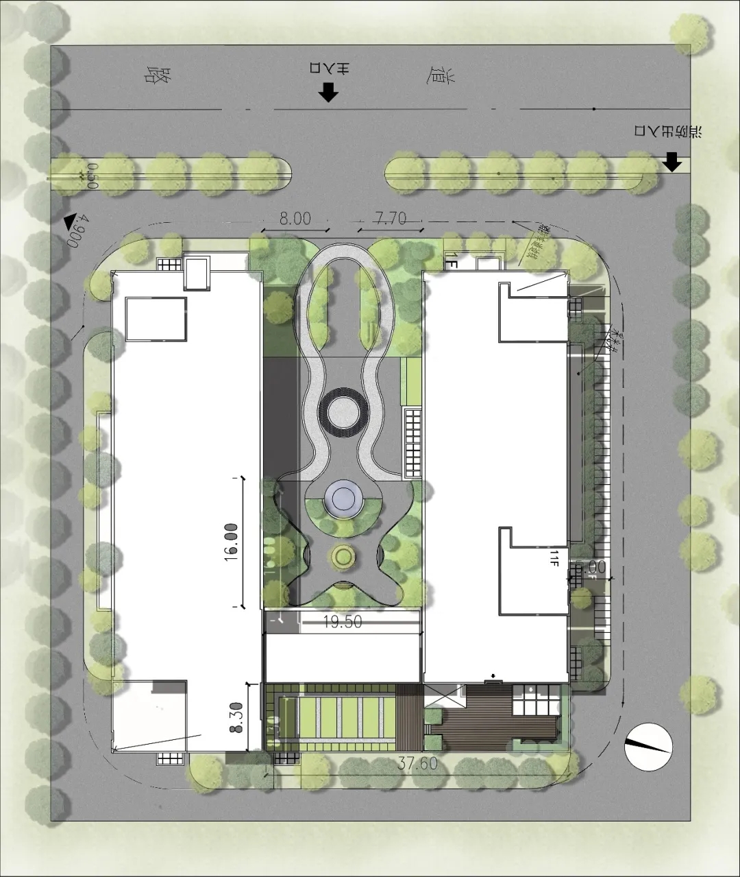
Floor plan
|
As can be seen from the planar scheme, a large number of circular and curved designs appear. However, these can be seen in the facade, these are only graphics and moving lines, do not affect the sense of space.

Live-action
|
1.Corporate image background
When we were doing a bike-themed mini-park, we thought that they might have engineers doing some experiments on cars in the landscape area, so the designer made a circular, moving line around the landscape. In order to stretch the line a little longer, a kind of circular layout was made.



2.Business owner background
The circular waterscape wall and the low wall grille divide the area into the moving area: the cycling area. Quiet area: leisure seating area.





3.Night scene effect
Simple warm colors and white light make the space look clean and advanced.



Vegetation area and leisure area
|
Because there are tall buildings on three sides of the space, this space will feel more depressed. Therefore, the designer planted some upright ginkgo biloba in the space, which has some changes in the season. Moreover, because be in autumn and winter when ginkgo is met deciduous, do not affect the daylighting of indoor space. Therefore, in this space, it mainly plays two roles: First, to weaken the relatively high glass curtain wall. Second, bring some color changes to the space.





Detail
|
Every detail is the designer's heart.





ABOUT PROJECT
Project Name : Anida Drive Technology (Shanghai) Co., Ltd.
Project Location : Shanghai
Project area : 800square meters
Designer : Zhu Weiguo ( Mark.Zhu )
Design team : Shanghai Dongtian Landscape Design Engineering Co., Ltd.